PXF - Dane mechaniczne
Rodzaj montażu Wbudowany
Materiał obudowy Aluminium
PXF - Dane optyczne
Odbłyśnik Wysoki połysk
PXF - Dane elektryczne
Źródło światła LED
Liczba źródeł światła 1
Napięcie znamionowe 230 V
Rodzaj LED 5630
Zawiera źródło światła Tak
Rodzaj osprzętu Zasilacz
Moc oprawy 14 W
Współczynnik mocy 0,98
PXF - Dane informacyjne
Kolor Szary
Zakres temperatur pracy 0 ... 40 °C
PXF - Dane świetlne
Barwa światła Biała
Wskaźnik oddawania barw 84
Klasa oprawy I
Rozsył światła DI
Degradacja diod LED B10
Spadek strumienia świetlnego w czasie L90
Żywotność diod LED > 54000 h
MacAdam SDCM 3
LLMF - poziom strumienia początkowego po czasie 60 000h 90 %
PXF - Certyfikaty i oznaczenia
Klasa ochronności I
Stopień ochrony (IP) IP20
CE Tak
Klasa energetyczna A+
Klasa przeciwpożarowa „F z dachem” Tak
Ochrona źródła światła Tak
Stopień ochrony od góry (IP) IP20

Nowy system opraw LED przeznaczony do łączenia w linie. Jest eleganckim i efektywnym rozwiązaniem sprawdzającym się w oświetlaniu biur, sali konferencyjnych, recepcji oraz innych powierzchni pracy.

Wykonanie: profil aluminiowy malowany elektrostatycznie (w standardzie kolor szary), klosz mikropryzmatyczny (MPRM)
z PMMA lub klosz OPAL z PMMA.

Montaż: do wpuszczenia w sufit gipsowo-kartonowy G/K

Akcesoria: końcówki, łącznik liniowy niewidoczny

Zastosowanie: pomieszczenia biurowe,sale konferencyjne,sale wykładowe,poczekalnie, recepcje

Kategoria oprawy: oprawa systemowa

Zasilanie: 230 V

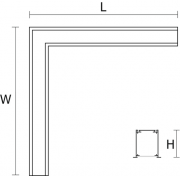
 LWHCDE
PX4042686  585 585 75 580 580 90
PX4042692  585 585 75 580 580 90
PX4042722  585 585 75 580 580 90
PX4042728  585 585 75 580 580 90

L - Długość
W - Szerokość
H - Wysokość / głębokość
C - Długość wbudowania
D - Szerokość wbudowania
E - Głębokość wbudowania

Polecamy również
 Luxiona Panel podtynkowy RIM LED Compact
Polecamy
Rated 5.0/5 based on 1 customer reviews
221,34 zł
 Glamox Panel LED C25 60x60cm
Rated 5.0/5 based on 1 customer reviews
od 175,50 zł
 Elektriko Oprawy QUATTRO 2.0 slim
Rated 5.0/5 based on 1 customer reviews
od 441,00 zł
 Luxiona Panel podtynkowy Backpanel LED
Rated 5.0/5 based on 1 customer reviews
od 102,40 zł
 Brilum Oprawa sufitowa ATUEL SQ
Rated 5.0/5 based on 1 customer reviews
od 14,25 zł
 Luxiona Panel podtynkowy BACKLITE  LED
Rated 5.0/5 based on 1 customer reviews
185,25 zł
Oprawa PXF Archida LED IP20
Rated 5.0/5 based on 1 customer reviews
262,55 zł
 Glamox Oprawa LED C77 60x60cm
Rated 5.0/5 based on 1 customer reviews
od 481,50 zł
 Elektriko Oprawy QUATTRO Q4 IP65
Rated 5.0/5 based on 1 customer reviews
997,43 zł
 Elektriko PANEL COMPACT 600 UGR<19 CRI90,  600 x 600 mm
Rated 5.0/5 based on 1 customer reviews
277,20 zł
Oprawa Philips CoreLine recessed RC136B wbudowywana
Rated 5.0/5 based on 1 customer reviews
493,00 zł
 Bowi Oprawa led Redom 42W 1,2m 4000K biała karton gips
Rated 5.0/5 based on 1 customer reviews
131,94 zł
Oprawa Sigma II G/K Corner LITE LED
Rated 5.0/5 based on 1 customer reviews
Lampy podtynkowe wpuszczane w sufit podwieszany, oprawy, oświetlenie / Panele LED oświetleniowe, oprawy na panel kwadratowy

PXF

Oprawa Sigma II G/K Corner LITE LED
430.35 PLN dostępny
Oprawa PXF Sigma II G/K Corner LITE LED
Nasze osiągnięcia

e-Gazele Biznesu 2016 e-Gazele Biznesu 2020 e-Gazele Biznesu 2022

Wyróżnienia od Euler Hermes
"Złoty Płatnik 2015"
"Złoty Płatnik 2016"
Złoty płatnik 2015 Złoty płatnik 2016 Eksport

Firma Logisoft - właściciel marki Elektriko - prowadzi nieprzerwanie działalność już 20 lat - od 14 sierpnia 2006 roku. Zaufało nam już 49661 firm. W ofercie posiadamy 18 402 produktów.

Plików cookie używamy do spersonalizowania treści i reklam, aby oferować funkcje społecznościowe i analizować ruch w naszej witrynie.Informacje o tym, jak korzystasz z naszej witryny, udostępniamy partnerom społecznościowym, reklamowym i analitycznym.Partnerzy mogą połączyć te informacje z innymi danymi otrzymanymi od Ciebie lub uzyskanymi podczas korzystania z ich usług. Tutaj możesz dokonać szczegółowych ustawień lub cofnąć zgodę. Więcej informacji znajdziesz w naszej polityce prywatności .